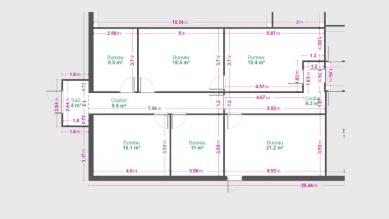
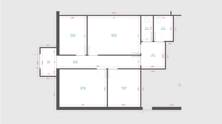
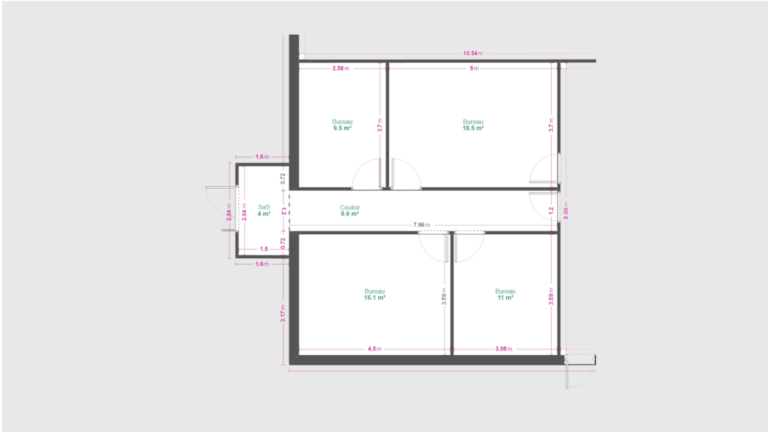
Ensemble de 6 à 8 bureaux 120 m² – Terrasse – Nancy-Maxéville-Laxou
Ensemble de 6 à 8 bureaux professionnels à louer situé au 2 rue de la Plaine à Maxéville, à proximité immédiate de Nancy et Laxou, dans le quartier Champ-le-Bœuf. Ces bureaux bénéficient d’une situation stratégique dans l’agglomération nancéienne, avec un accès rapide à Autoroute A31, à Avenue du Rhin Nancy et à Avenue des Quatre…
