Ensemble de bureaux professionnels à louer situé au 2 rue de la Plaine à Maxéville, à proximité immédiate de Nancy et Laxou, dans le quartier Champ-le-Bœuf.
Ces bureaux bénéficient d’une situation stratégique dans l’agglomération nancéienne, avec un accès rapide à Autoroute A31, à Avenue du Rhin Nancy et à Avenue des Quatre Vents Nancy.
Les commerces et services sont accessibles en quelques minutes, notamment le Centre Commercial La Cascade.
Le secteur est également desservi par le Tramway de Nancy.
Ces bureaux conviendront parfaitement à une entreprise, une agence, un cabinet ou une activité tertiaire recherchant des locaux accessibles dans la métropole de Nancy.
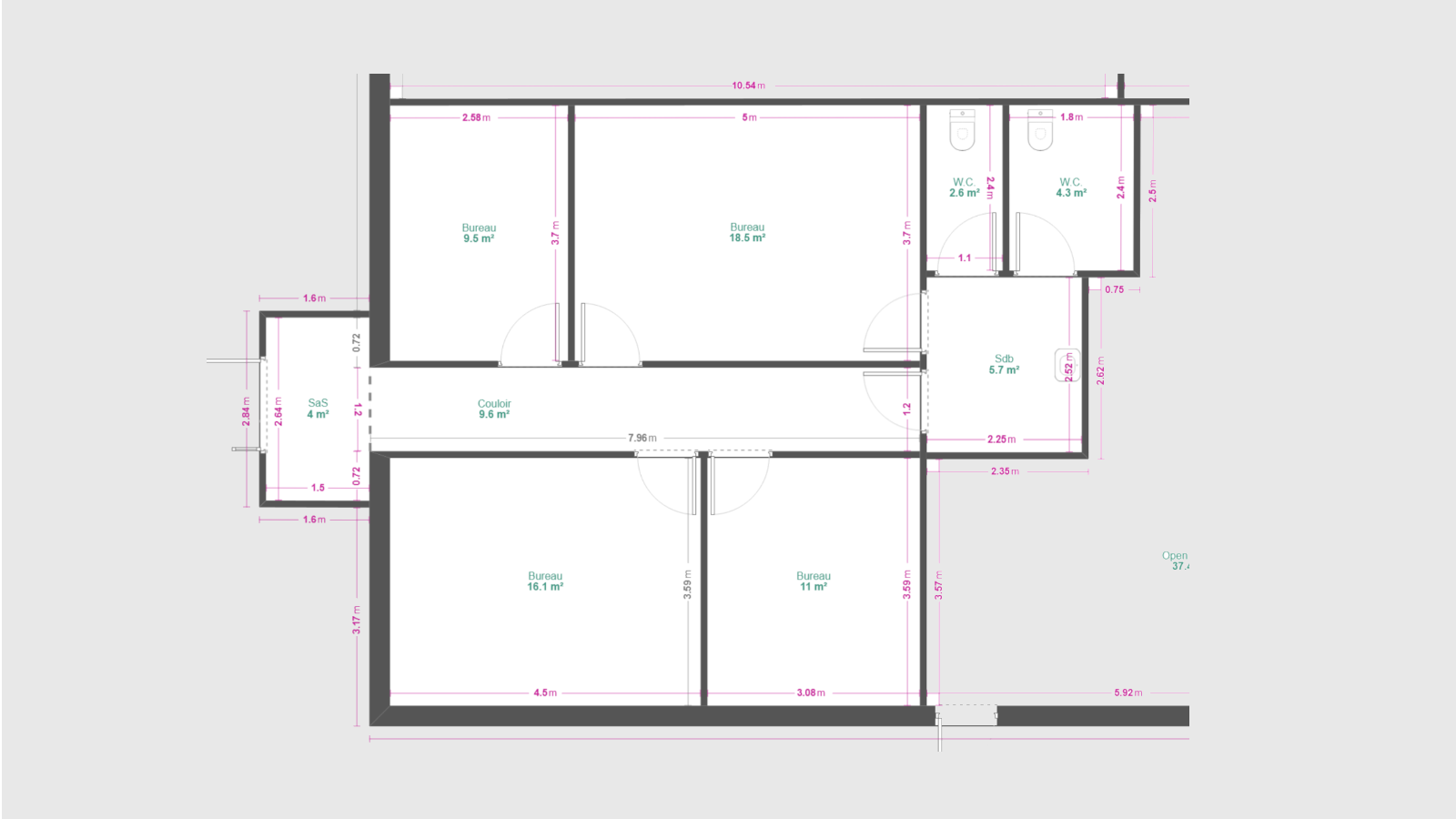
Surface et configuration des bureaux
- Surface utile : 80 m²
- Surface corrigée : 80 m2
- sas d’entrée principal
- couloir de distribution
- bureau de 9,5 m²
- bureau de 16,1 m²
- bureau de 11 m²
- salle de réunion / bureau d’environ 12,5 m²
- Sanitaires hommes, femmes et PMR
Équipements des bureaux
Les locaux disposent de nombreux équipements :- accès direct et personnel avec sas d'accueil
- câblage informatique complet
- éclairage LED
- faux plafond
- murs récemment repeints
- carrelage au sol
- accès Internet
- immeuble sécurisé (alarme et vidéosurveillance)
- possibilité de signalétique (voir ci-dessous)
Stationnement
L’immeuble dispose de parkings privés sécurisés :- 6 places de stationnement
- accès contrôlé
- système de blocage automatisé type stop-park
- ou parking fermé & surveillé
Conditions de location
- Surface corrigée: 80 m²
- Loyer : 15 € HT / m² / mois
- Provision de charges : 5 € HT / m² / mois
- Loyer mensuel : 1 200 € HT
- Charges mensuelles : 400 € HT
- chauffage
- électricité
- accès Internet
- nettoyage
- taxe foncière
- T.E.O.M.
Espaces supplémentaires disponibles (option)
Selon les besoins de l’entreprise, il est possible de louer en complément :- un local de stockage de 12 m² (archives ou matériel)
- un bureau indépendant de 15 m² avec porte communicante
- un open space de 37 m², avec accès extérieur sur terrasse privative. Si besoin, peut être divisé en plusieurs locaux.
Visibilité et publicité pour votre entreprise
L’immeuble offre plusieurs possibilités d’affichage professionnel :- panneau 5 m × 2 m visible depuis l'avenue du Rhin (Nancy)
- panneau 2,5 m × 1 m en façade rue de la Plaine
- panneau 1 m × 1 m à l’angle des rues
Localisation des bureaux
Adresse :
2 rue de la Plaine – 54320 Maxéville - Champ le BœufSituation :
- 200 m du rond point des Quatre vents
- 200 m de l'accès A31
- 100 m du bureau de Poste et de l'agence BPLCA
- 100 m du centre commercial la Cascade (Gifi, Aldi, boulangerie, pharmacie, maison médicale, tabac...)
- 50 m de l'arrêt "La Poste" de la ligne 2 du tram du Grand Nancy
- environ 200 m de la limite de Nancy
- environ 200 m de la limite de Laxou
- le centre de Nancy
- les zones d’activités de l’ouest nancéien
- les grands axes routiers.
